Stafford Floor Plan

Liveable Sq Ft: 2,870 | Main Sq Ft: 1,856 | Second Sq Ft: 1,014 | Beds: 3 + Office | Baths: 2.5

About The Stafford Floor Plan

The Stafford’s distinctive design evokes the charm of a traditional barn converted into a modern home. With a timber frame skeleton that mirrors an authentic barn structure, this home offers both rustic appeal and contemporary living. Timber posts frame the inviting entryway, leading into an open living space. To the right, a cozy fireplace anchors the sophisticated living room, creating the perfect gathering area. The dining room flows seamlessly into a large kitchen, complete with an oversized island featuring breakfast seating for the entire family. The kitchen opens to a beautiful covered patio, ideal for enjoying the outdoors in style.

The main level primary suite is a private retreat, with luxurious amenities such as a spacious walk-in closet and a spa-like ensuite bath. Upstairs, the floating loft–reminiscent of a traditional hayloft–provides a versatile, airy space that leads to an outdoor balcony. A bonus room could serve as a playroom, office, TV room or gym, adding extra functionality to the second level. Two additional bedrooms offer the perfect space for family or guests. Outside, the timber frame-covered patio provides plenty of space for alfresco dining, grilling, or simply relaxing at the end of the day.

Highlights:

  • Traditional barn style features contemporary amenities
  • Floating loft creates lofty ceilings and an airy atmosphere in the lower living areas
  • Private primary suite boasts timber details and luxurious ensuite 
  • Timber frame covered patio provides an elegant outdoor gathering space

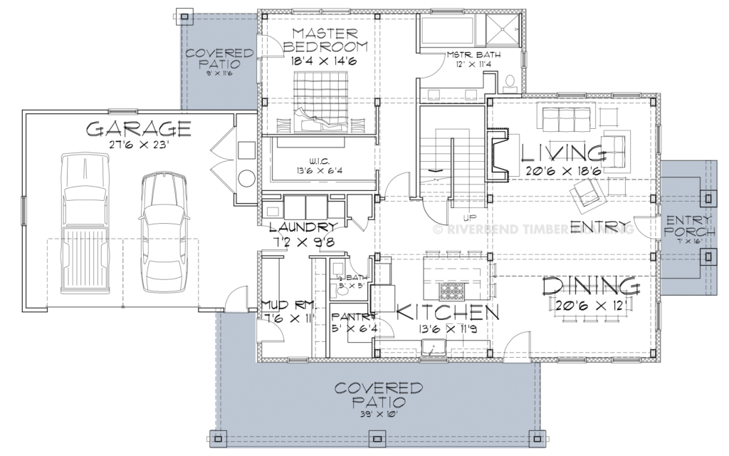
Main Level

1,856 sq ft

2nd Level

1,014 sq ft

Front Elevation

Side Elevation

Rear Elevation

Side Elevation Two

Timber Frame Skeleton

SIP Envelope

Floor Plan Highlight: Barn Style Homes

The Stafford design gives the impression of being a former barn that was converted into a living space. One of the many advantages of designing this style of home from scratch is the ability to take the design elements you love and mix them with modern living needs. For instance, the main floor of the Stafford is similar to contemporary layouts, while the second floor includes a floating loft with a balcony to emulate a traditional barn design feature.

Need More Information?

Whether you’re looking for more information or would simply like to learn more about us and our services, don’t hesitate to contact us. Please follow the link below to access our online form or call us at 888.486.2363. We look forward to hearing from you.

Search our Site...

100% + Reset