Tuscany Floor Plan

Liveable Sq Ft: 4,142 | Main Sq Ft: 2,422 | 2nd Sq Ft: 1,720 | Beds: 3 + Bonus | Baths: 3.5

About The Tuscany Floor Plan

Welcome to the Tuscany, an exquisite European-inspired timber frame home that seamlessly blends old world charm with modern-day comforts. Upon arrival, a charming front porch with luxurious timber accents invites you into the foyer, setting the stage for the grandeur that lies within. The focal point of the main level is the expansive great room, adorned with an elegant fireplace, two-story ceilings, skylights, and large windows that flood the space with natural light. The open floor plan effortlessly connects to a bright corner dining room and spacious chef’s kitchen, complete with a walk-in pantry, perfect for culinary enthusiasts. 

The main level primary suite is a luxurious retreat, featuring an oversized layout with a window alcove and a second fireplace creating a warm ambiance. His and hers walk-in closets lead to a sumptuous ensuite bath, showcasing dual vanities, a private water closet, a grand tub strategically placed to enjoy views through the window, and a large walk-in shower for ultimate relaxation.

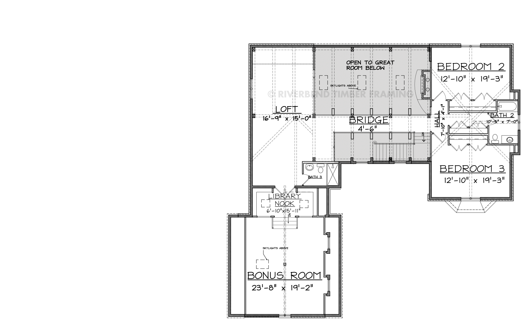
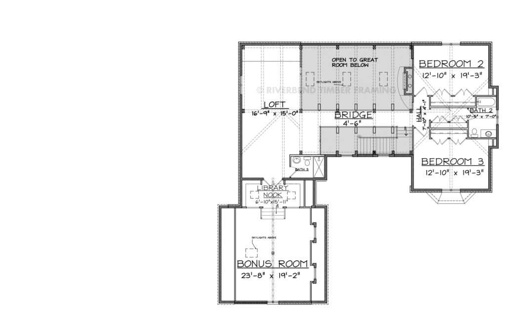
Upstairs, two generously sized bedrooms share a sunny bathroom, while a catwalk gracefully overlooks the main living space, connecting to a generous loft area. A private library opens to an expansive bonus room, offering endless possibilities for use, from a bunk room to an art studio or theater. Outside, a rear porch extends the living space, continuing the home’s charm to the outdoors, and inviting you to enjoy the surrounding land.

Highlights:

  • Exceptional curb appeal
  • Airy, open plan living
  • Double-height great room
  • Multiple flex spaces
  • Duel walk-in closets

Main Level

2,422 sq ft

2nd Level

1,720 sq ft

Front Elevation

Side Elevation

Rear Elevation

Side Elevation Two

Floor Plan Highlight: Above the Garage

If you need extra space for a bunk room, art studio, or theater, you may want to consider adding it above your garage. Adding livable space above an existing foundation can cost less than adding it to your overall layout.

Tuscany Photo Galleries

View custom homes based on this stunning timber frame floor plan.

Need More Information?

Whether you’re looking for more information or would simply like to learn more about us and our services, don’t hesitate to contact us. Please follow the link below to access our online form or call us at 888.486.2363. We look forward to hearing from you.

Search our Site...

100% + Reset