
2023 National Association of Home Builders Award for Excellence in Timber Frame Home Design.
Classic craftsman architecture meets elegant luxury with this stunning resort-like lakefront home. The Evergreen exudes a rare and captivating charm, which instantly transports you to a world where nature intertwines with architecture. A lifelong lover of the great outdoors, when the owner first visited the site, he knew immediately that this was the one. The mature trees, the water frontage with incredible views over the lake – it quickly became apparent where the house would stand, minimally disrupting the land and blending seamlessly into the surrounding evergreens. The light glistening through the trees, the soft sounds of the water in the morning…. “It feels like an oasis.” Built not only to mimic the surrounding trees, the timber frame structure was designed to bring the forest inside as a structural element as well as a work of art, providing a breath of fresh air and feeling of escape everywhere you turn. Each timber piece chosen holds a story of its own, as the natural imperfections and textures add character that simply cannot be replicated by modern construction materials.

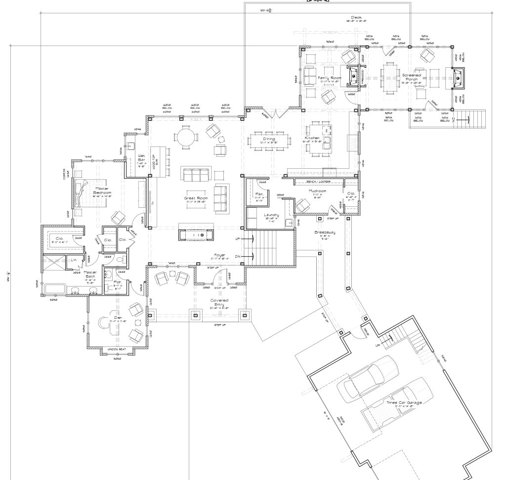
Working with Riverbend’s senior designers, the team created the intricate timber frame around the owner’s vision of the heart of the home – a creative surprise for guests and family: while near the kitchen, the heart of this home is a delightful, luxurious lounge. Much like a grand hotel lobby, you enter to peek-a-boo views beyond the elegant towering stone fireplace, hinting at the welcoming space beyond. Around the stone, you find yourself in the two story great room and lounge, anchored by the fireplace, with comfortable seating where the view is not of the television, but the best view of the lake from the home – a place to enjoy one another’s company, with a deep sense of hospitality, taking entertaining to the next level. A well placed bar with custom crafted wood bar top lines the room, and the two-story windows framed in thick timbers tie directly into the trees just outside the window, drawing you towards the sparkling lake below.
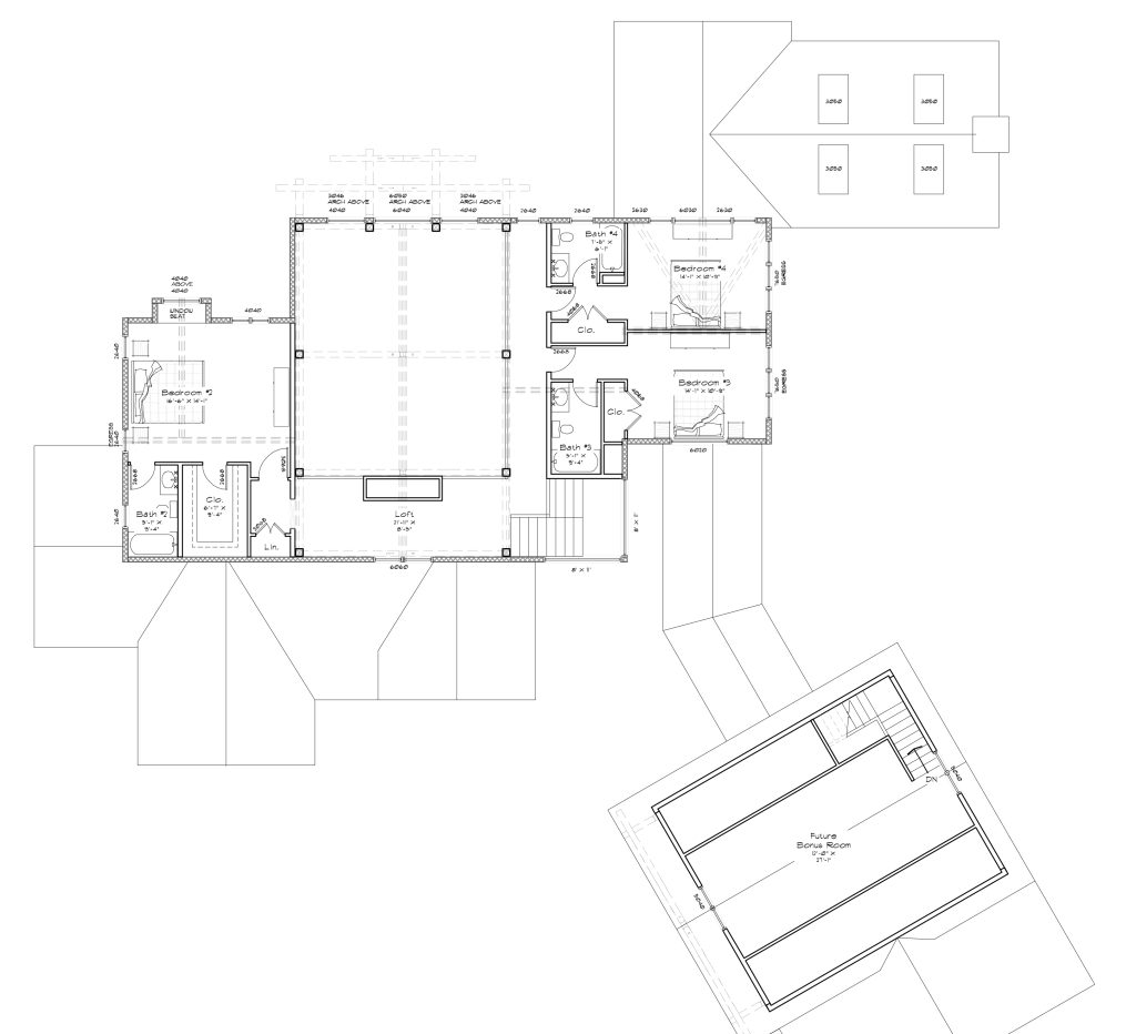
The Evergreen is built for lake living, featuring three distinct levels. The main level exudes resort living, with the lounge leading to the chef’s kitchen and dining, tied together with a timber frame screened in porch, for alfresco living at its finest. Opposite the central lounge, a luxurious master suite and den round out the main floor. The upper level continues the resort feel, with three spacious guest rooms with ensuite bath, and an open loft balcony connecting the rooms that wraps around the lounge, providing the same spectacular views, and a chance to interact with guests below. The lower level is built for lake living and families, with an outdoor shower, bunk room, game room with billiards, home gym and a ‘lake room’ for lake toys/ paddleboards, and a convenient lower level laundry for swimsuits and towels. The Evergreen is a vibrant oasis for those seeking a dynamic, fulfilling and adventurous lifestyle on the lake.
Floor Plan


