Fairfield Floor Plan

Liveable Sq Ft: 2,534 | Main Sq Ft: 1,817 | 2nd Sq Ft: 717 | Opt. Basement Sq Ft: 1,648 | Beds: 3 | Baths: 3.5

About The Fairfield Floor Plan

The Fairfield is a timeless design that adapts beautifully to either a flat or sloping lot, with an optional basement to suit your needs. Its welcoming covered porch wraps around the home to an expansive rear deck, making it the perfect place to enjoy quality time with family and friends. Once inside, you’re greeted by impressive windows, vaulted ceilings, and beautifully crafted timber framing. A study off the foyer is ideal for working from home, serving as a library, or even a playroom. The great room boasts vaulted double-height ceilings, majestic timber framing, and a magnificent fireplace, creating a warm and inviting atmosphere.

The open floor plan flows into a spacious kitchen and dining area, perfect for gathering and hosting events. The main level primary suite offers deck access, a spa-like five-piece ensuite, and an oversized walk-in closet. On the second level, two spacious bedrooms with ensuite baths are connected by an open, airy loft that overlooks the great room below, providing a fantastic view out the great room windows. An optional basement adds versatile customizable space. Outside, the iconic wrap-around porch can be accessed from multiple rooms throughout the home, seamlessly blending indoor and outdoor living to create a sanctuary to fill up on family memories.

Highlights:

  • Remarkable wrap around porch
  • Ensuite bathrooms in each bedroom
  • Optional lower level offers versatile space
  • Open plan living ties into the outdoors

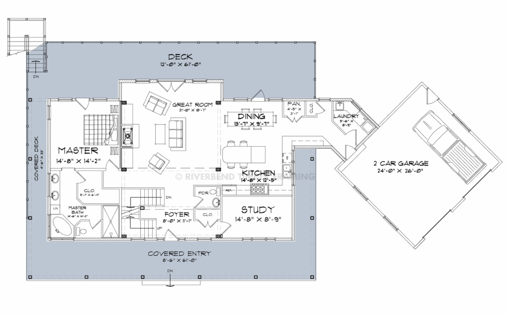
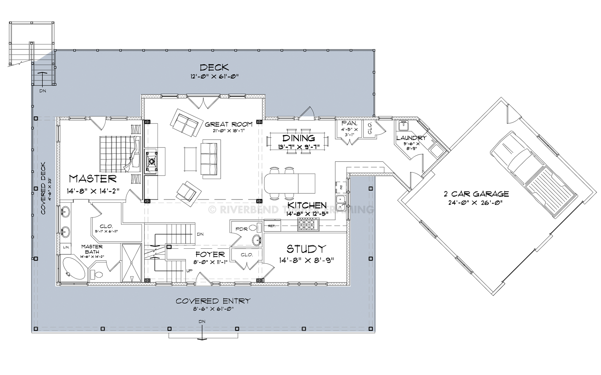
Main Level

1,817 sq ft

2nd Level

717 sq ft

Opt. Basement

1,648 sq ft

Front Elevation

Side Elevation

Rear Elevation

Side Elevation Two

Floor Plan Highlight: Wrap-Around Decks

Many people are drawn to the Ranch style of design because of the iconic wrap-around deck or porch. Not only do you gain valuable outdoor living space, but the covered parts of the deck also provide protection from sun and weather. You also have more flexibility in adding doors to access your deck, as shown in the Fairfield, there access points in the dining, great, and master, as well as the front door.

Need More Information?

Whether you’re looking for more information or would simply like to learn more about us and our services, don’t hesitate to contact us. Please follow the link below to access our online form or call us at 888.486.2363. We look forward to hearing from you.

Search our Site...