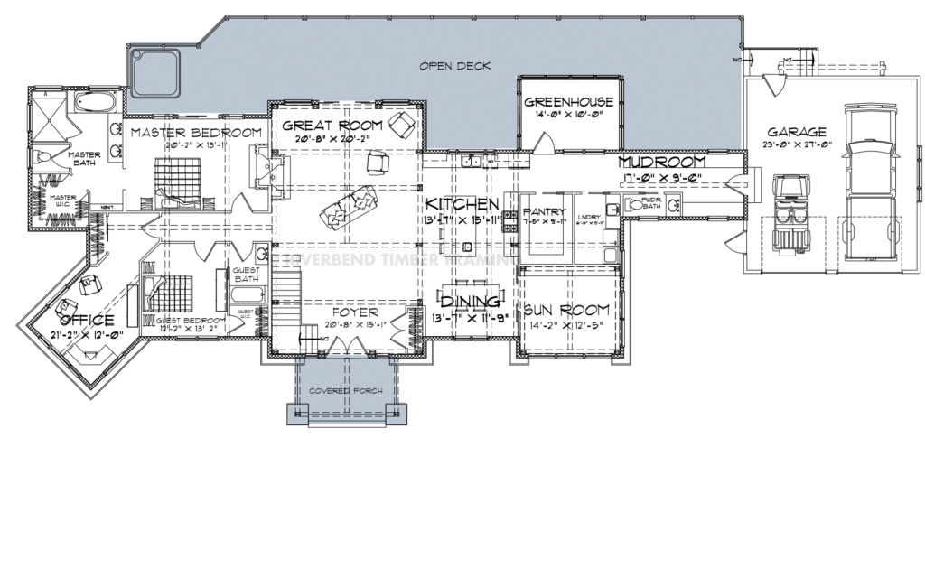
Pheasant Ridge Floor Plan

Liveable Sq Ft: 2,904 | Main Sq Ft: 2,904 | Opt. Basement Sq Ft: 1,928 | Beds: 4 + Office | Baths: 3.5

About The Pheasant Ridge Floor Plan

Welcome to the Pheasant Ridge, a stunning single-level timber frame design that combines traditional style with modern elegance, featuring an optional basement for added versatility. Ornate angles and the use of gables, dormers, and bays create a dynamic and open appeal. The stately covered porch welcomes you into the foyer, leading to a spectacular great room with vaulted ceilings that flood the space with natural light. Timber framing gracefully accentuates the space, and oversized windows with double doors leading directly to the back deck enhance the seamless indoor-outdoor living experience. 

The open floor plan flows into the dining room and chef’s kitchen, complete with an oversized walk-in pantry. Off the kitchen is an attached greenhouse, perfect for growing fresh herbs, veggies and fruit year-round. The dining room, an elegant space, flows into the sunroom, offering a light and bright atmosphere. The sophisticated primary suite is a private sanctuary, featuring a spa-like ensuite, deck access, and a romantic fireplace. The generously sized guest bedroom and a luxurious corner office round out the main level. The optional basement offers plenty of space for a rec room, home gym, and additional bedrooms for family or guests. Outside, a large deck provides endless opportunities for grilling, gathering, and enjoying the company of good friends.

Highlights:

  • Bonuses around every corner, with a sun room, attached greenhouse, corner office and more
  • Gables, dormers and bays create a dynamic curb appeal
  • Elegant timber framing adds dramatic craftsmanship
  • Optional basement provides loads of versatile space
  • Entertainer’s kitchen with oversized walk-in pantry

Main Level

2,904 sq ft

Opt. Basement

1,928 sq ft

Front Elevation

Side Elevation

Rear Elevation

Side Elevation Two

Timber Frame Skeleton

SIP Envelope

Floor Plan Highlight: Working From Home

If you plan on doing a lot of work from home, the Pheasant Ridge showcases an amazing office space. Escape the fluorescent lights and spend time in an office with three walls of windows. Depending on your needs, there is room for a desk, a comfy couch, shelving, or even a work table. It is easier to work any time of day when your office space is secluded from the main living areas, as it is in the Pheasant Ridge.

Need More Information?

Whether you’re looking for more information or would simply like to learn more about us and our services, don’t hesitate to contact us. Please follow the link below to access our online form or call us at 888.486.2363. We look forward to hearing from you.

Search our Site...

100% + Reset