Branson Floor Plan

PerfectFit | Liveable Sq Ft: 2,003 | Main Sq Ft: 1,313 | 2nd Sq Ft: 690 | Beds: | Baths: 3.5

About The Branson Floor Plan

Estimated Structural Shell cost: $600,000-$700,000* (see below for package details)

This clever modern farmhouse features clean lines and loads of natural light, exuding an inviting energy from the moment you set eyes on it. A covered timber frame entry welcomes you into an open living space, featuring a vibrant family kitchen with a large center island, and centralized dining space that is perfect for entertaining. The great room boasts soaring ceilings and a stunning fireplace anchoring the space. Down the hall, a private owners suite offers thoughtfully placed windows for curated views, and a spa-like bathroom with dual vanities, private washcloset, walk-in shower and spacious wardrobe. Upstairs, a catwalk overlooks the great room below, and a hall leads to two spacious guest bedrooms, each with an exquisite ensuite bathroom. Outside, a covered wrap-around patio provides a splendid versatile space to relax, unwind and enjoy the great outdoors.  

Highlights:

  • Grand fireplace creates a cozy atmosphere in the spacious two-story great room
  • Nooks and clever storage are built-in throughout the home, maximizing every bit of the space
  • Spacious family kitchen is the heart of the home, with an open flow through the dining and great room

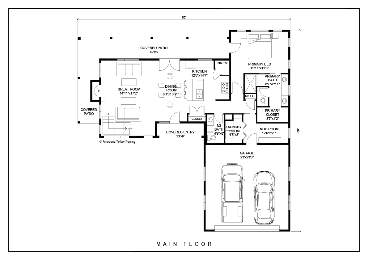
Main Level

1,313 sq ft

2nd Level

690 sq ft

Front Elevation

Side Elevation

Rear Elevation

Side Elevation Two

Signature Timbers

Timber Frame Skeleton

SIP Envelope

Floor Plan Highlight:

Estimated Structural Shell cost: $600,000-$700,000*

Below is the scope of work included in constructing the structural shell.  The Riverbend package is the most critical element of the structural shell, and Riverbend will work with your builder to ensure a fast and economical build.

The Structural Shell cost includes:

  • Permitting
  • Construction Drawings Stamped by Licensed Engineer
  • Site work
  • Foundation
  • MEP’s – (Mechanical, Electrical, plumbing)
  • Weather Tight Shell
    • Riverbend package including timber frame and structurally insulated panels (walls and roof).
    • Exterior and interior conventional framing necessary for structure.
    • Floor systems
    • Windows and Doors
    • Exterior siding and paint
    • Roofing material
    • Installation of all products

Does not include:

  • any applicable tax
  • shipping from factory to build site
  • impact of any Owner-driven design refinement
  • impact of any required change due to local jurisdiction, design review board or engineering requirements including snow, wind, seismic load, etc.

Need More Information?

Whether you’re looking for more information or would simply like to learn more about us and our services, don’t hesitate to contact us. Please follow the link below to access our online form or call us at 888.486.2363. We look forward to hearing from you.

Search our Site...