Designing for Your Lot

When you decide to follow the Total Home Solution™ (THS) custom design process at Riverbend Timber Framing, each home design is created specifically for you and your build site. Our friendly architectural designers have designed homes for a wide variety of lot configurations. Here are some of the items to keep in mind regarding specific lots.

Small Lots

Smaller lots require a talented designer who can find alternative ways to create the types of spaces you want to include in your timber home design.

Things to Consider When Purchasing a Small Lot

  • How much of the lot is buildable after setbacks and easements are considered?
  • How much yard space would you like?
  • Are there any height restrictions you need to consider?
  • How close are the neighbors on each side?
  • Do you need a garage? What size?
  • Which living spaces are most important to emphasize?

The Cattail Lodge

The Cattail Lodge was originally designed as a two-story plan without a basement. The photo of the completed home above is based on this design idea but shows how a full basement was added to compensate for the client’s mountain-side landscape. If your site’s slope is similar, we can add a full basement to any of our plans.

The Bar Harbor

If you have a gentler slope, your options can include excavation to flatten the area, incorporation of a shallower basement, or a stepped layout. The Bar Harbor is an example of how a plan can step with the flow of a slope. There are three main three sections in this design concept, and each level is separated by a handful of stairs, rather than a full staircase.

The Mayson

The Mayson represents a typical solution to slopes where only a portion of the house has a basement below. This solution provides extra space and also two levels for outdoor living–the deck is accessible from the main living space and the covered patio below. The lower level can also be utilized for primary or secondary garage space.

Sloped Lots

One of the most common questions we get asked is if we have plans for sloped lots. The short answer is yes; all of our plans can be modified to fit with a sloped lot. Since every lot is unique, your design team will work with you to either modify an existing plan or create a new plan that flows with your build site.

Things to Consider When Purchasing a Sloped Lot

  • How much excavation will be required?
  • Where are view corridors located?
  • Will an access road be needed?
  • Is there enough room for a crane?
  • Will erosion be an issue in the future?

Outdoor Spaces

A smaller lot might limit outdoor living space behind your home. Consider a wrap-around porch or deck that can add multiple areas while maintaining the basic shape of your home.

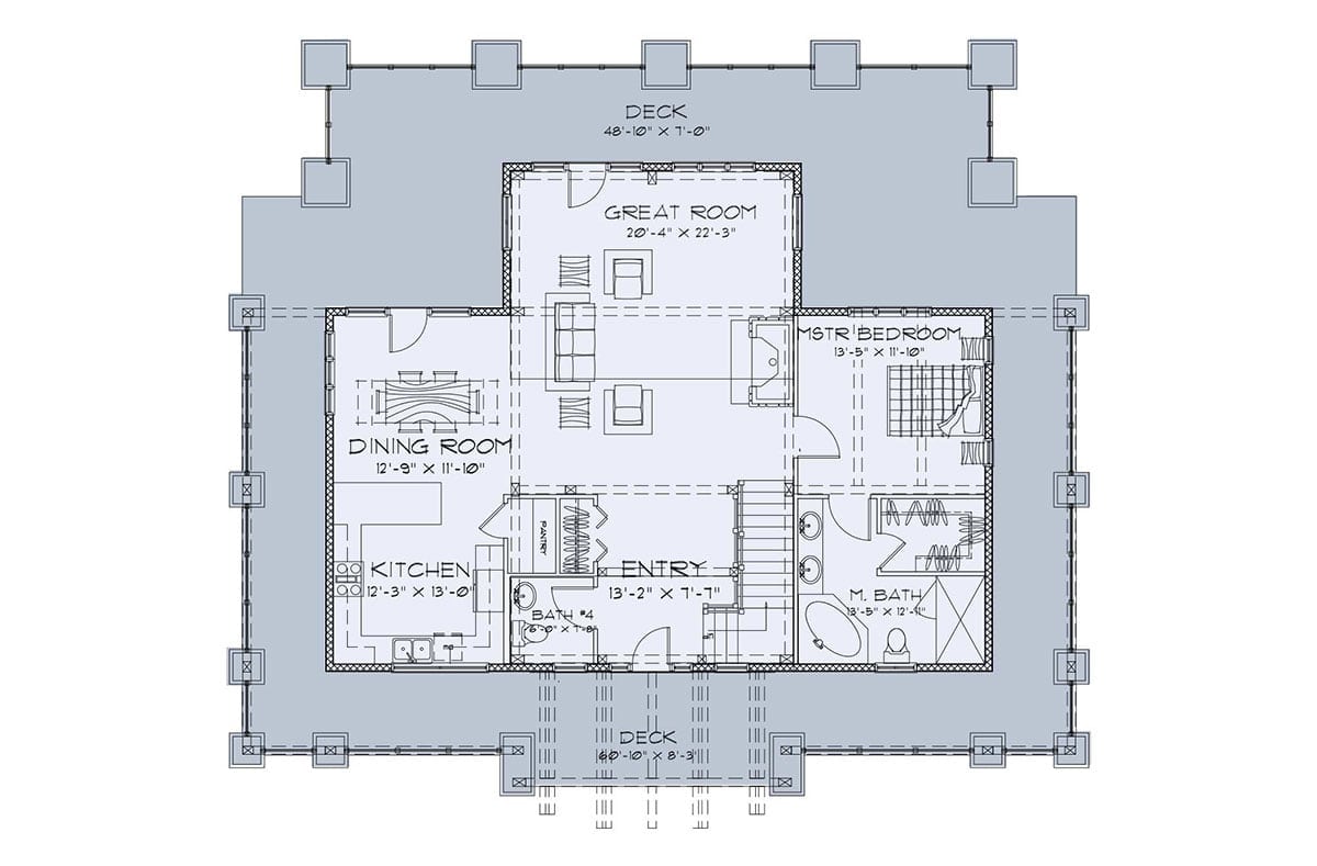
The Cattail Lodge

One of the most obvious ways to add space to a design for a smaller lot is to include multiple levels. This altered version of the Cattail Lodge, for instance, has a basement that is used as a garage plus a main level and second level. If you were to remove the screened-in porch and move the garage in, you could achieve an even smaller footprint.

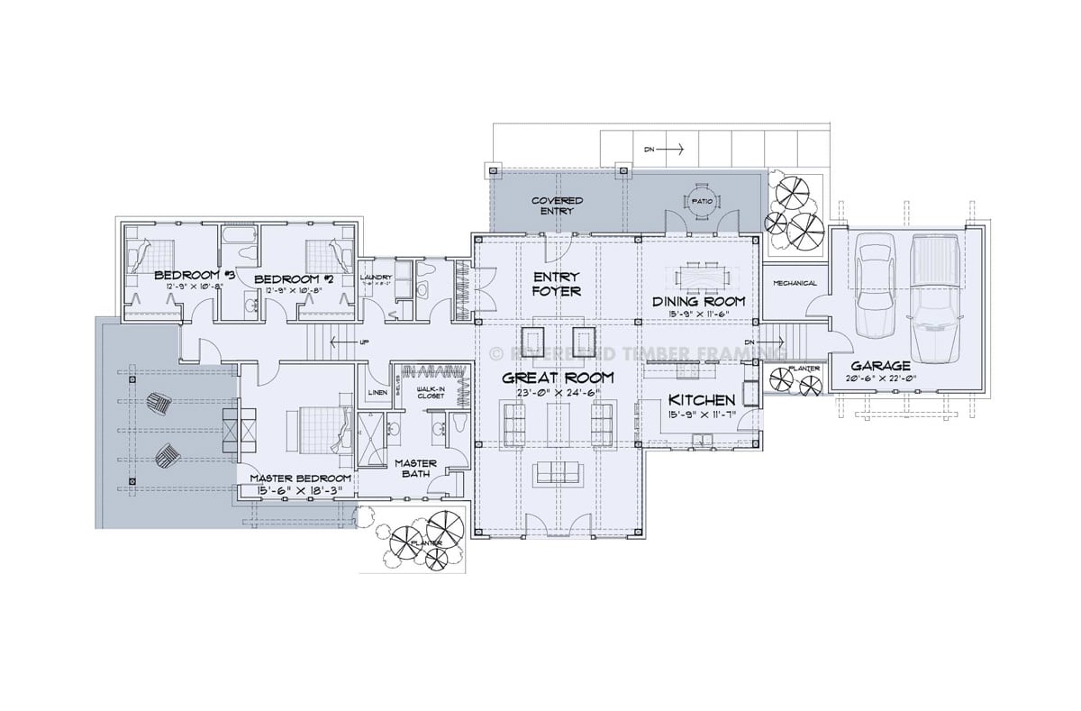
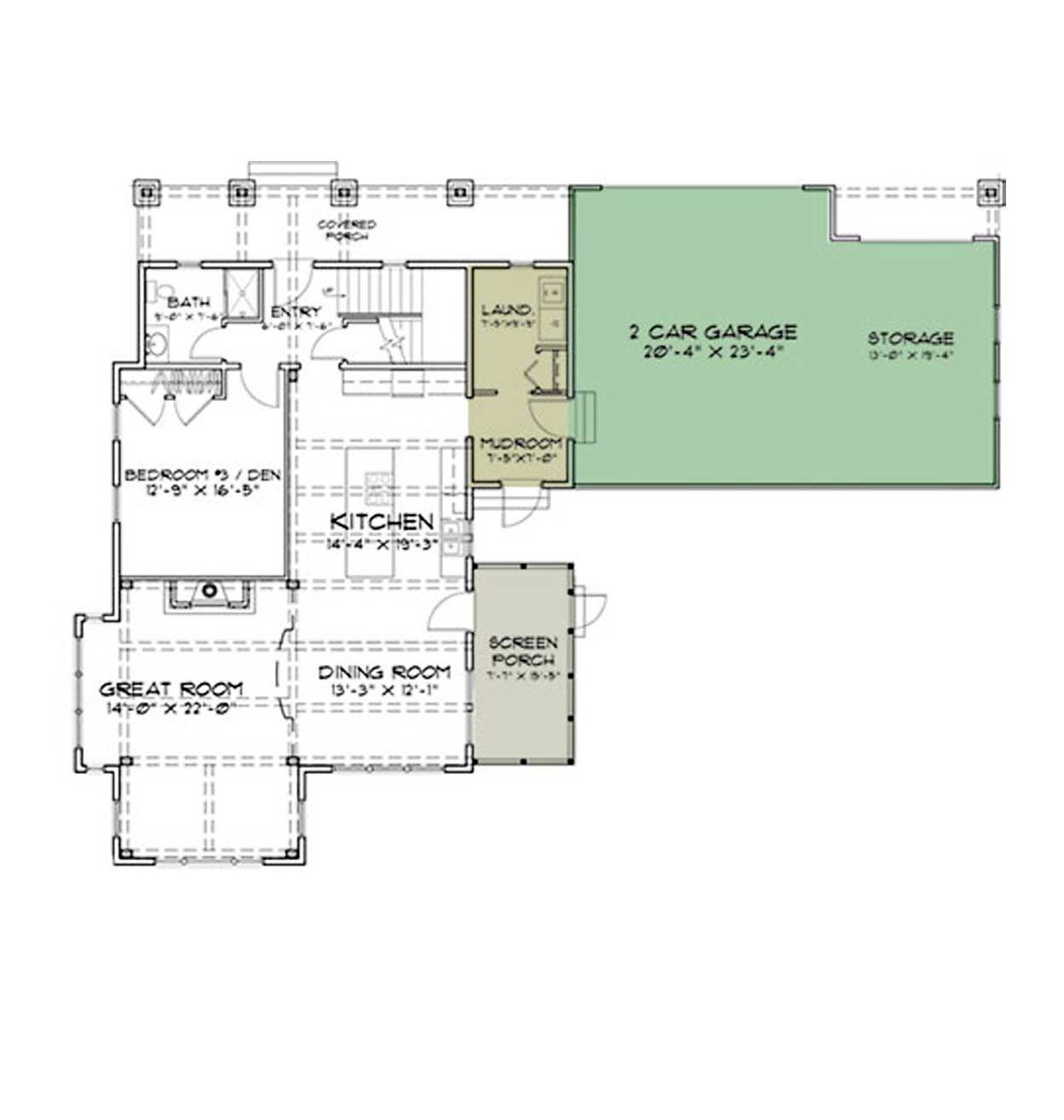
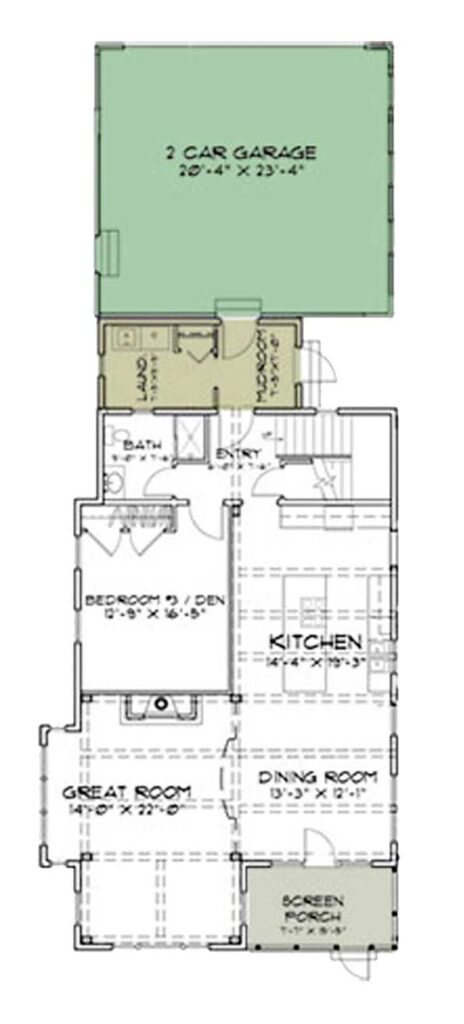
Narrow Lots

Whether it is near your favorite lake or in a preferred school district, location is a primary concern when building a timber home. The availability of prime lots in your preferred location may limit your options and could result in the purchase of a lot with a challenging shape. If you have a narrow or odd-shaped lot, we are excited to work with you to create the ideal design for your site … and your preferences.

Things to Consider When Purchasing a Narrow Lot

  • Where are the easements located?
  • Are prominent views on the narrow or wide side of the lot?
  • Where is the main road in relation to the lot?
  • Are there any height restrictions to consider?
  • How close are the neighbors on each side?

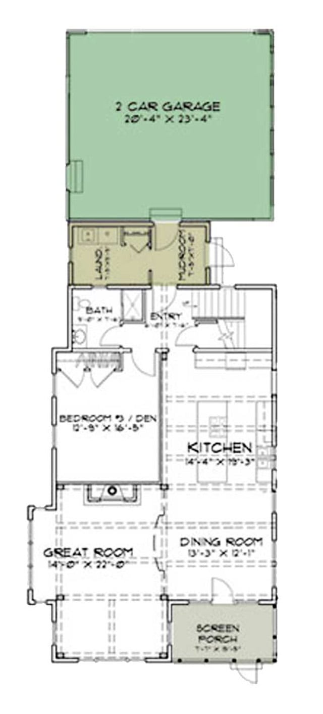
Narrow Example 1

The original concept may not look like it could be transformed to fit a narrow lot; however, with a few modifications, it can easily fit on a long piece of property. Altering the garage, laundry room, and screened-in porch achieves the goal while most of the original layout remains unchanged.

Reference the color-coded sections to see what was moved or altered.

Narrow Example 2

The Bar Harbor design concept illustrates how you can take advantage of a narrow lot where the main view corridors are located on the long edge of an elevation.

Narrow Example 3

This design is another concept which can be easily modified to fit within a very narrow lot. While narrow lots create design constrictions and challenges, we encourage you to discuss it with us. We are sure our design team can find creative ways for you to take advantage of your location.

Need More Information?

Whether you’re looking for more information or would simply like to learn more about us and our services, don’t hesitate to contact us. Please follow the link below to access our online form or call us at 888.486.2363. We look forward to hearing from you.

Search our Site...

100% + Reset